

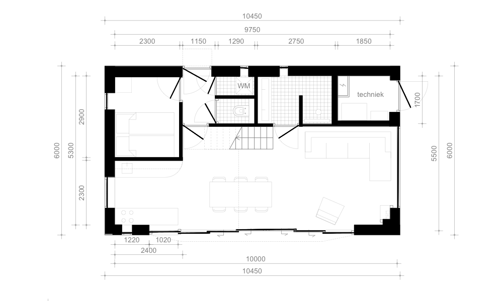
Deze vakantiewoning in een prachtige omgeving benut zijn plek optimaal. Binnen de maximale 300m3 en beperkte hoogte is een plan gemaakt met de woonkamer, leefkeuken én masterbedroom aan de tuinzijde. De grote glazen pui trekt buiten naar binnen toe. De pui kan volledig opengezet worden. Ik heb hiervoor geleverd: het ontwerp, de principevergunningen en initiële aansturing van de technische uitwerking tijdens mijn dienstbetrekking bij Kraal Architecten.





