
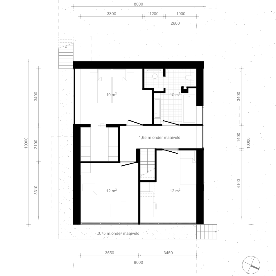
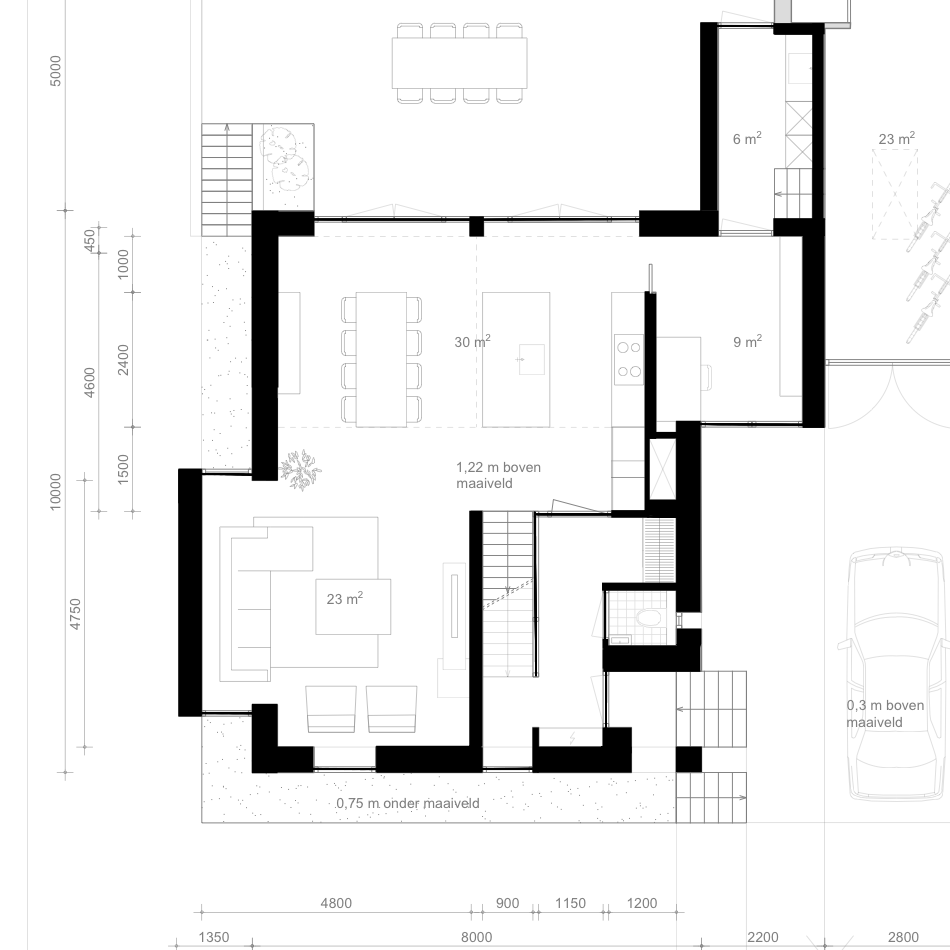
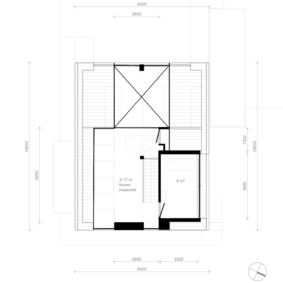
Bescheiden vrijstaande witgestucte woning. Door de introductie van een souterrain werd het mogelijk een gezinswoning te realiseren binnen de regels van het bestemmingsplan. Het resultaat is een aangename woning met verrassende elementen. Ik heb hiervoor geleverd: het ontwerp, de principevergunningen, begeleiding van de technische uitwerking en esthetische begeleiding in de uitvoering tijdens mijn dienstbetrekking bij Kraal Architecten.





